Newsletter
Baugrundstücke gesucht
06151 27 44 999

Bedburg: Ihr neues Zuhause im Herzen des Rheinlands

Home / Aktuelle Projekte / Bedburg: Ihr neues Zuhause im Herzen des Rheinlands

Ihren Wohntraum erfüllen!

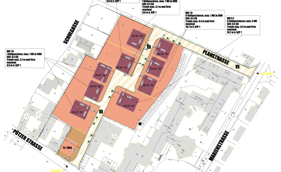
Aktuell wird ein neuer Bebauungsplan in Zusammenarbeit mit der Stadt Bedburg entwickelt, um die städtebauliche Entwicklung weiter voranzutreiben und attraktive Wohnräume zu schaffen.

Bedburg: Ihr neues Zuhause im Herzen des Rheinlands

Das Grundstück ist ca. 6.925 m² groß und verkehrsgünstig gelegen. Bedburg befindet sich zwischen den Städten Köln, Düsseldorf, Mönchengladbach und Aachen. Als Stadt im Rheinland in Nordrhein-Westfalen gehört Bedburg zum Rhein-Erft-Kreis im Regierungsbezirk Köln und besitzt seit 2011 den Status einer mittleren kreisangehörigen Stadt.

Die sehr guten öffentlichen Verkehrsanbindungen an die Deutsche Bahn und die Buslinien ermöglichen ein rasches Vorankommen in alle Richtungen. Darüber hinaus verfügt Bedburg über einen eigenen Autobahnanschluss an die A61, während die Autobahnen A4, A44, A46 und A540 in unmittelbarer Nähe sind.

Zentral gelegen und dennoch mit ländlichem Charakter, ist Bedburg eine kinder- und familienfreundliche Stadt. Alle Schulformen sind vorhanden und befinden sich in einem komplett modernisierten Zustand. Mit attraktiven Einkaufsmöglichkeiten, abwechslungsreicher Gastronomie, einem Krankenhaus und mehreren Ärzten bietet Bedburg eine ausgezeichnete Infrastruktur.

Besonders der gemeinschaftliche Zusammenhalt und das Vereinsleben haben in Bedburg einen hohen Stellenwert. Ob im Erlebnisfreibad, beim Wellness im Monte Mare Bedburg, auf den Sport- und Tennisplätzen oder im nahegelegenen Golfclub Erftaue – hier kommt jeder auf seine Kosten. Die Naherholungsgebiete Kasterer See und Perings-Maar bieten die Gelegenheit, dem stressigen Alltag zu entfliehen und die Seele baumeln zu lassen. Ein abwechslungsreiches Kulturprogramm rundet das Angebot ab.

Lebe, Träume, Verwirkliche!

In unseren insgesamt 14 modernen Doppelhaushälften, die Größen von 132 m² bis 141 m² bieten, einer Stadtvilla mit einer Wohnfläche von 139 m² und sechs Eigentumswohnungen mit Wohnflächen von 51 m² bis 62 m² findet jedes Familienmitglied seinen Platz zum Wohlfühlen. Die durchdachte Raumaufteilung ermöglicht eine individuelle Entfaltung. Ob Sie schlafen, essen, entspannen, arbeiten oder Ihren Hobbys nachgehen möchten – hier ist für jeden etwas dabei. Die wunderschöne Terrasse lädt zur Erholung ein und bietet den perfekten Ort, um Sonne zu tanken. Auch gesellige Treffen mit Freunden sind im eigenen Garten unkompliziert möglich.

Neubauförderung

Die Bundesregierung unterstützt ausschließlich den Bau von energieeffizienten Häusern und Wohnungen, die im Rahmen des sogenannten Ersterwerbs entstehen. Im Fokus des „Klimafreundlichen Neubaus“ steht der Klimaschutz, wobei das Effizienzhaus den geltenden Standard darstellt. Ziel ist es, durch umweltfreundliches Bauen die Emissionen von Treibhausgasen zu reduzieren.

Förderberechtigung

Anträge auf Förderung können von Unternehmen, Investoren, Genossenschaften sowie Privatpersonen eingereicht werden. Die Kreditanträge sollten bei der KfW (Kreditanstalt für Wiederaufbau) gestellt werden.

Förderprogramme

Die folgenden Programme sind verfügbar:

– 297: „Klimafreundlicher Neubau Wohngebäude – private Selbstnutzung
– 298: „Klimafreundlicher Neubau Wohngebäude
– 300: „Wohneigentum für Familien

Bedingungen

Gefördert wird der Neubau, Kauf oder die Sanierung eines Effizienzhauses, solange die Immobilie den Energiestandard Effizienzhaus 40 erfüllt.

Förderhöhe

Pro Wohneinheit kann ein Kredit von bis zu 100.000 Euro gewährt werden, wenn das Wohngebäude klimafreundlich ist, aber kein Nachhaltigkeitssiegel besitzt. Bei Vorliegen des QNG-Siegels kann der maximale geförderte Kredit auf bis zu 150.000 Euro steigen.

Familien mit einem zu versteuernden Jahreseinkommen von bis zu 90.000 Euro, ermittelt im Maßstab der letzten zwei bis drei Jahre vor Antragstellung, können abhängig von der Anzahl ihrer Kinder bis zu 240.000 Euro als zinsgünstiges Darlehen erhalten.

Es ist zu beachten, dass die Förderprogramme KFW 300 und QNG 298 nicht miteinander kombiniert werden können.

Mit unseren energieeffizienten QNG+ Häusern und Wohnungen erreichen wir den neuen KfW-40-Standard.

Vereinbaren Sie mit Ihrem persönlichen WinDA Wohnbau Berater einen Besichtigungstermin in einem der Musterhäuser ,  hier zum unseren Virtuellen 360° – Rundgang .

Weitere informationen finden Sie hier “ Neuer Bebauungsplan Bedburg Kirchherten

Einheiten

21

Wohnfläche

ca. 6.925 m2 m2

Geplante Realisierung

2026

Spezifikationen

Objektart
EFH, DHH, ETW
Zimmer
ab 2
Wohnfläche
ab 52 m2
Stellplatztyp
Parkplätze
Alt-/Neubau
Neubau
Stellplatzanzahl
2
Baujahr
2027
Heizungsart
Förderprogramme KFW 40 + QNG Effizienzhaus 40+
Heizungsart
Zentral mit Bio Masse
Gäste-WC
1
Anzahl separater WCs
2
Anzahl Balkone/Terrassen
Ja
Energieausweis liegt vor
Nicht benötigt
Anzahl Badezimmer
2
Zustand
Neu
Grundstücksfläche
ca. 6.925 m2
Lage
50181 Bedburg Kirchherten
Provision für Käufer
Keine
Der Vertrieb

GLIM Immobilien
Uerdinger Straße 62
47799 Krefeld

Tel: 02151 624 65 65
Fax: 02151 624 65 66

info@glim-immobilien.de

E

Objektanfrage


    Widerrufsbelehrung: Ich habe die Widerrufsbelehrung gelesen, verstanden und bin damit einverstanden. Des Weiteren stimme ich zu, dass vor Ablauf der Widerrufsfrist mit der Dienstleistung begonnen werden darf. *
    Ich stimme zu, dass die von mir getätigten Angaben, sowie die von mir angegebenen Kontaktdaten, zwecks der Leistungserbringung und für den Fall von Rückfragen gespeichert werden. Des Weiteren nehme ich zur Kenntnis, dass die von mir getätigten Angaben nicht ohne Einwilligung an Dritte weitergegeben werden. *

    O

    Infos anfordern

      WINDA WOHNBAU NEWSLETTER

      Bleiben Sie auf dem neuesten stand und erhalten Sie informationen zu unseren Wohnkonzepten per E-mail

      Nach Ihrer Einwilligung zum Erhalt unseres Newsletters, nutzen wir Ihre Daten ausschließlich für die Zusendung von Informationen über Wohnkonzepte und Neuigkeiten der WinDA Wohnbau GmbH Co KG. Wir speichern und verarbeiten diese Daten zum Zwecke der Newsletter-Versendung. Ihre Daten werden ausschließlich von derWinDA Wohnbau GmbH Co KG verarbeitet, sie werden keinem unbeteiligten Dritten zur Verfügung gestellt. Sie können Ihre Einwilligung zum Erhalt des Newsletters jederzeit und mit sofortiger Wirkung widerrufen, indem Sie den Link zur Abmeldeseite, der sich in jedem Newsletter befindet, benutzen.